Engineering Program Center
Contact us
| 电 话: | 137-3905-3096 |
| 传 真: | 0731-85788881 |
| E-mail: | 2578764014@qq.com |
| Q Q: | 2578764014 |
| 地 址: | 湖南省长沙市劳动路树木岭新城新世界广场C栋24楼41房 |
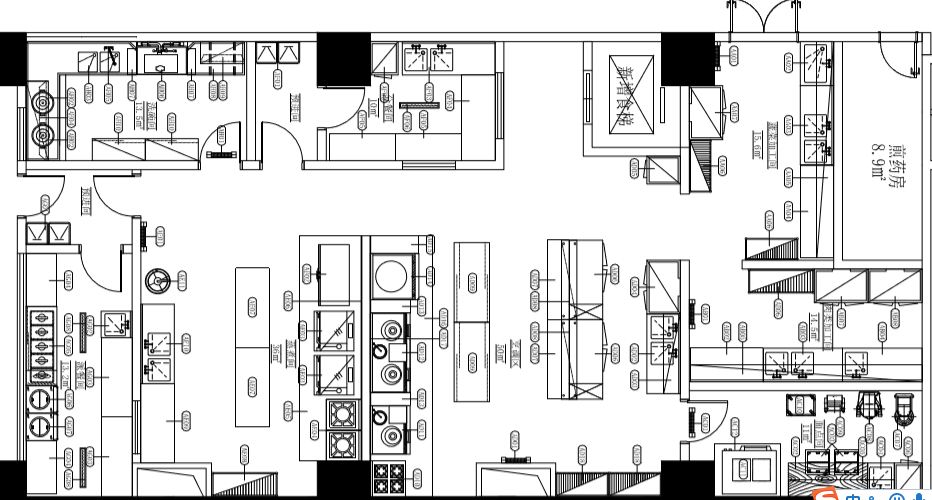
医院食堂厨房工程
承接项目范围
厨房工程设备布局图、厨房设备报价预算、水电位深化图纸、排烟系统方案图、
厨房排水隔油、油烟净化方案 、设备招标文件、配合工程验收
设计考虑因素
食堂厨房与餐厅面积比例、食堂厨房设备招标及预算、
食堂厨房水电、燃气用量食堂厨房排烟系统参数
医院食堂厨房工程设计原则
一、卫生选择原则
1、厨房位置应设置在粉尘、有害气体、放射性物质和其它扩散性污染源的影响
2、应同时符合规划、环保和消防的有关要求。
二、建筑结构、场所设置、布局、分隔、面积卫生要求
1、建筑结构坚固耐用、易于维修、易于保持清洁应能避免有害动物的侵入和栖息。
2、食品处理区均应设置在室内。
3、食品处理区应按照原料进入、原料处理、半成品加工、成品供应的流程合理布局,食品加工处理流程宜为生进熟出的单一流向,并应防止在存放、操作中产生交叉污染。成品通道、出口与原料通道、入口成品通道、出口与使用后的餐饮具回收通道、入口均宜分开设置。
4、食品处理区应设置专用的粗加工、烹调和餐用具清洗消毒的场所并应设置原料和或半成品贮存、切配及备餐的场所。
5、食品处理区的面积应与就餐场所面积、供应的最大就餐。
医院食堂厨房工程的设计、建设、施工、设备配置等涉及多个系统工作,要点众多,由于篇幅所限,在此不作详细叙述,如有相应意向需求,欢迎咨询艾默柯服务热线:400-0731-815。
艾默柯——商用厨房工程设备一站式服务商
工程效果图展示
ENGINEERING EFFECT DIAGRAM DISPLAY
请提供 您的基本情况
我们为您提供有价值的建议 我要提供>>
食堂面积
我们需要你提供给我们您的食堂面积,我们将根据您的面积来为您的食堂进行规划布局。
用餐人数
我们需要你提供给我们用餐人数,我们根据您的用餐人数对厨房针对性进行设计。
开餐次数
我们需要提供给我们您的食堂每日的用餐次数;一餐?二餐?三餐?
预算定位
我们需要提供给我们您食堂的标准定为;豪华的?普通的?大型的?小型的?
科学 Science
科学布局策划+优化设备配置+延长设备寿命+降低使用能耗
节能 Energy-Saving
先进的空气预混合技术+磁感应防空烧+冷热分区设计+智能感应节水节电,实现最高达47%的整体项目节能。
高效 Efficient
科学规划加工路线及流程设计+根据面积进行设备订制优化+智能设备减少厨房对人员依赖

公众号

手机站
全国服务热线:0731-85788880传真:0731-85788881E-mail:2578764014@qq.comQQ:2578764014
地址:湖南省长沙市劳动路树木岭新城新世界广场C栋24楼41房湘ICP备18010002号
版权所有:湖南艾默柯节能厨具有限公司